Encanto clásico y potencial de transformación en el corazón de Goya
Ubicada en una de las calles más emblemáticas del barrio de Goya, esta propiedad representa una oportunidad única para quienes buscan crear un hogar a medida o realizar una inversión con alto potencial de revalorización en una de las zonas más exclusivas de Madrid.
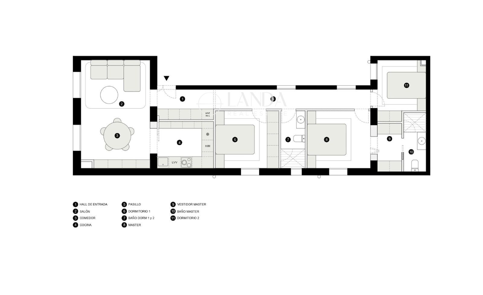
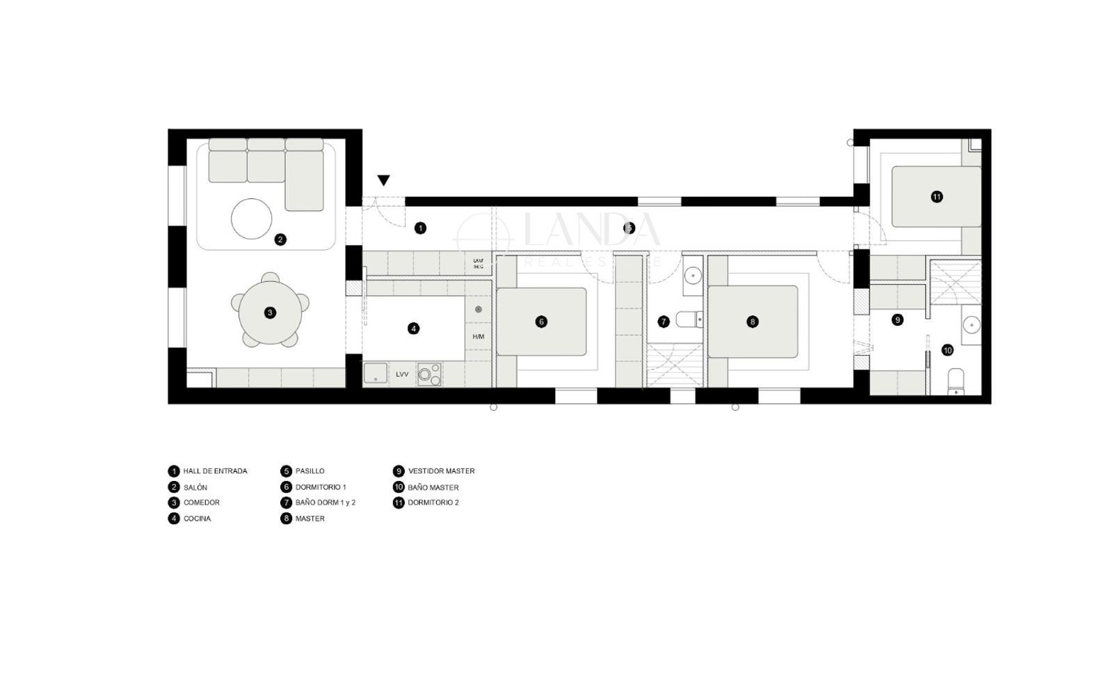
Situada en una finca clásica de 1901, con fachada representativa y patios bien conservados, esta vivienda de 99 m² destaca por sus techos de 3 metros de altura, orientación este y dos balcones corridos que aportan luminosidad y elegancia. Actualmente se encuentra completamente demolida y lista para ser transformada con un proyecto personalizado que propone tres dormitorios, dos baños y una distribución que separa con acierto las zonas de día y de descanso.
Ubicación privilegiada
La propiedad se encuentra a pocos pasos de museos, teatros y comercios de alto nivel, en un entorno residencial tranquilo pero vibrante. La excelente conectividad, con varias líneas de metro y autobuses, permite un acceso rápido al resto de la ciudad.
Una inversión sólida
La demanda constante en esta zona, sumada al atractivo arquitectónico del edificio y a las posibilidades de personalización, convierten esta propiedad en una opción ideal tanto para vivir como para invertir.
Características destacadas
Finca clásica de 1901 con fachada elegante
99 m² construidos (93 m² útiles)
Proyecto de reforma opcional (219.872 € sin IVA)
Posibilidad de 3 dormitorios y 2 baños
Altura de techos: 3 m
2 balcones exteriores
Calefacción individual
Comunidad: 140 €/mes
IBI: 734 €/año